Lennar - Solution to Obstructed Background Views

 

Lennar - Solution to Obstructed Background Views

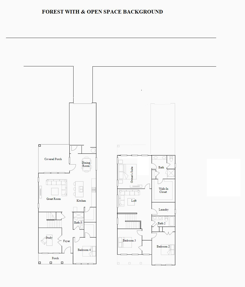
When there is a beautiful backdrop like a natural forest with lot of trees and privacy, it make no sense to build a house that prevents the house from taking advantage of all the natural views in the back. This house model called Virginia in being built on Lot 132 in the Lennar community of Edge of Auburn and doing just that. 

By putting houses that have garages in the back, it kills the possibility of getting to see the picturesque backdrop. A house with garage in the back is a sore thumb which blocks all that the location has to offer to the house. 

To mitigate such a scenario, I have presented a few variations to help take advantage of these specific lot. The next best thing would be to put a house that has a front facing garage to allow the back to be open to the views form the house.

                                              Waterbury - Garage in Rear           Winstead - Garage in Front

IMPORTANT: If there is a possibility of building houses with garage in the front of the house then it will be the best and easiest solution to get advantage of the privacy and views in the backyard.

Diagrams to help show the problem and the ways to provide a solution.

1. Original House setting
2. Variation 1:  Shift garage to the side
3. Variation 2: Convert 2 car garage to 1 car garage

-----------------------------------------------------------------------------------------------
Diagram 1. Original House setting
- Background views blocked by Garage 
- No windows on 2nd floor master





-----------------------------------------------------------------------------------------------

Diagram 2: Variation 1:  
- Shift garage to the side
- Garage shift allows the covered porch full view of the background scenery
- Windows in owner's bedroom facing the back to provide a view of the scenery.



-----------------------------------------------------------------------------------------------

Diagram 3. Variation 2: 
- Convert 2 car garage to 1 car garage
- Garage size change allows the covered porch full view of the background scenery



Samuel Benjamin
919-889-6025
sammybenjamin@gmail.com

Comments